ФАЗЕНДЕР-59
9 182 000
1
Этажей
2
Комнат
Общая площадь
59 кв.м
Стильный дом для жизни в зелёном пригороде. Он одинаково хорош для приватного семейного отдыха и встречи шумной компанией друзей. Одноэтажный дом с лаконичной архитектурой, панорамными окнами и большой террасой создан для постоянного проживания двух-трёх человек.
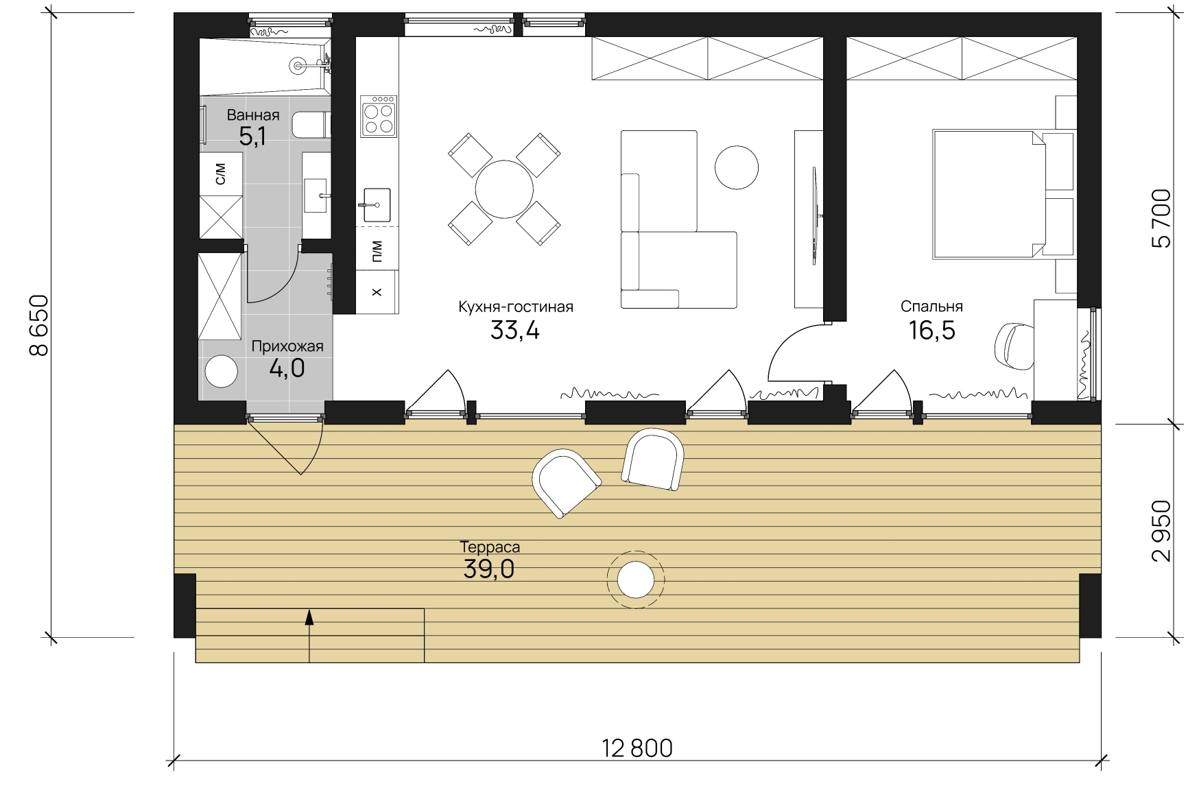
Терраса площадью 39 кв.м. в тёплое время года функционирует в качестве третьей комнаты: может быть и рабочим местом на свежем воздухе, и местом для семейных завтраков, и танцполом для вечеринки с друзьями. А в зимнее время терраса послужит зоной для гриля и посиделок под тёплым пледом с согревающим напитком.
Дом имеет просторную кухню-гостиную, продуманную под все потребности загородной жизни. Мастер-спальня вмещает в себя кровать, гардероб и стол, который может послужить как туалетным столиком, так и рабочим местом.
планировка, ФАЗЕНДЕР-59
Комплектация
  • Каркас из доски камерной сушки
  • Утеплитель минеральная вата 200 мм
  • Наружная отделка фасадной доской
  • Большие окна и витражи
  • Внутренняя чистовая отделка
  • Полностью укомплектованный санузел
  • Система скрытого водостока
  • Крытая терраса
  • Тёплые полы в каждой комнате
  • Скрытые инженерные коммуникации
  • Двери межкомнатные
  • Светильники
ЧТО ВХОДИТ В СТОИМОСТЬ ДОМА
Цена дома включает подготовку проектной документации, изготовление и сборку комплекта на производстве, доставку, монтаж и отделку на участке. За внутренние коммуникации и чистовую отделку дополнительно платить не придётся – они входят в прописанную в договоре стоимость.

Конструкции модулей предполагают заводское изготовление. Инженерные сети проложены в пространстве панелей стен и перекрытий, на площадке выполняется только сборка и подключение.
ЧТО НЕ ВХОДИТ В СТОИМОСТЬ ДОМА
Что не входит в стоимость дома, но возведение дома без этого невозможно. Выполняется сторонними подрядными организациями под контролем Лесного сбора.
передовые технологии для вашего УЮТА
Дом-термос - сохраняет тепло зимой, прохладу - летом за счёт бесшовной технологии
стыковки панелей
Система управления климатом и освещением с Алисой Яндекса
Поддержание заданной температуры в доме и быстрый прогрев к приезду хозяев
Возможнось связать дом с системами безопасности и создать имитацию присутствия хозяев во время отпуска
ФАЗЕНДЕР-59
2 комнаты
1 этаж
59 кв.м
9 182 000
Сетки и жалюзи

по расчёту
от 18 600
Лестница
Замена материала

по расчёту
Зашивка цоколя

от 8 000
Камин подвесной
от 347 000
от 84 000
Печь-камин
Терраса
от 8 000
Навес
от 390 000
дополнительные опции
Понравился
этот дом?
Закажите его презентацию и мы ответим на все интересующие вас вопросы