41,5 кв.м
Общая площадь
Комнат
1
Этажей
1
7 739 000
ФАЗЕНДЕР-42
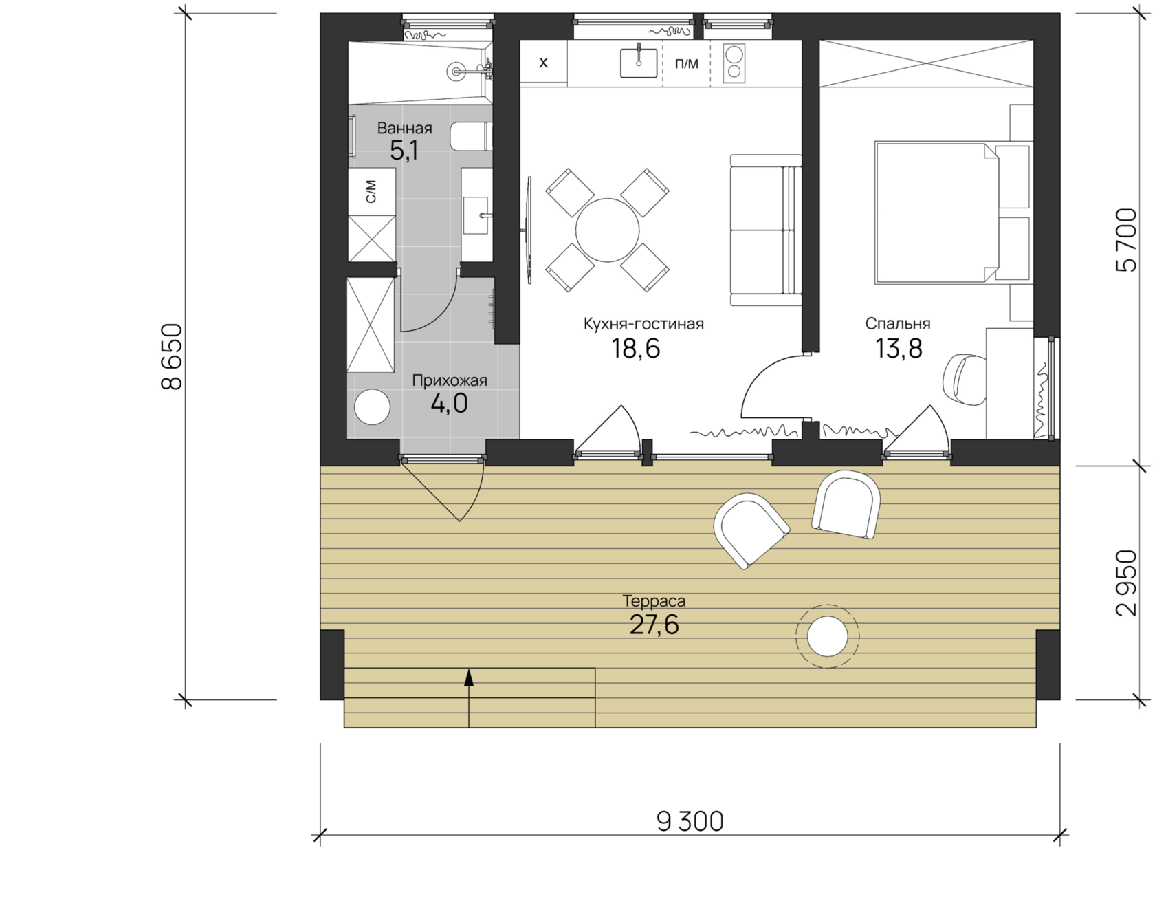
Компактный дом выходного дня и удалённой работы, приспособленный для постоянного проживания. Практичный одноэтажный дом оптимален для комфортного размещения двух-трёх человек. Пространство используется эффективно: включает в себя много мест для хранения и необходимый функционал кухонной зоны.
В спальне достаточно места для полноценной двуспальной кровати с тумбами и рабочего места. В ванной комнате рационально размещается всё необходимое, возможна установка ванны длиной 1,8м. На просторной террасе всегда готовы кресла для отдыха в жаркий полдень и мягкие пледы для вечернего чаепития.
планировка, ФАЗЕНДЕР-42
передовые технологии для вашего УЮТА
Дом-термос – сохраняет тепло зимой, прохладу – летом за счёт бесшовной технологии
стыковки панелей
Система управления климатом и освещением с Алисой Яндекса
Поддержание заданной температуры в доме и быстрый прогрев к приезду хозяев
Возможнось связать дом с системами безопасности и создать имитацию присутствия хозяев во время отпуска
Комплектация
  • Каркас из доски камерной сушки
  • Утеплитель минеральная вата 200 мм
  • Наружная отделка фасадной доской
  • Большие окна и витражи
  • Внутренняя чистовая отделка
  • Полностью укомплектованный санузел
  • Система скрытого водостока
  • Крытая терраса
  • Тёплые полы в каждой комнате
  • Скрытые инженерные коммуникации
  • Двери межкомнатные
  • Светильники
ЧТО ВХОДИТ В СТОИМОСТЬ ДОМА
Цена дома включает подготовку проектной документации, изготовление и сборку комплекта на производстве, доставку, монтаж и отделку на участке. За внутренние коммуникации и чистовую отделку дополнительно платить не придётся – они входят в прописанную в договоре стоимость.

Конструкции модулей предполагают заводское изготовление. Инженерные сети проложены в пространстве панелей стен и перекрытий, на площадке выполняется только сборка и подключение.
ЧТО НЕ ВХОДИТ В СТОИМОСТЬ ДОМА
Что не входит в стоимость дома, но возведение дома без этого невозможно. Выполняется сторонними подрядными организациями под контролем Лесного Сбора.
ФАЗЕНДЕР-42
1 этаж
41,5 кв.м
7 739 000
Сетки и жалюзи

по расчёту
от 18 600
Лестница
Замена материала

по расчёту
Зашивка цоколя

от 8 000
Камин подвесной
от 347 000
от 84 000
Печь-камин
Терраса
от 8 000
Навес
от 390 000
дополнительные опции
Понравился
этот дом?
Закажите его презентацию и мы ответим на все интересующие вас вопросы